エステート若葉 名古屋市北区若葉通[マンション]

エステート若葉 名古屋市北区若葉通[マンション]

マンション[名古屋市北区若葉通]

千種区の賃貸、不動産情報は「なごやか不動産」物件検索サイト

  • 052-753-7581
  • 10:00~19:00

会員の方

閉じる

物件詳細

エステート若葉 名古屋市北区若葉通[マンション]

 

エステート若葉 名古屋市北区若葉通[マンション] の物件詳細ページです。

物件種別: マンション

お問い合わせ番号:0000020592

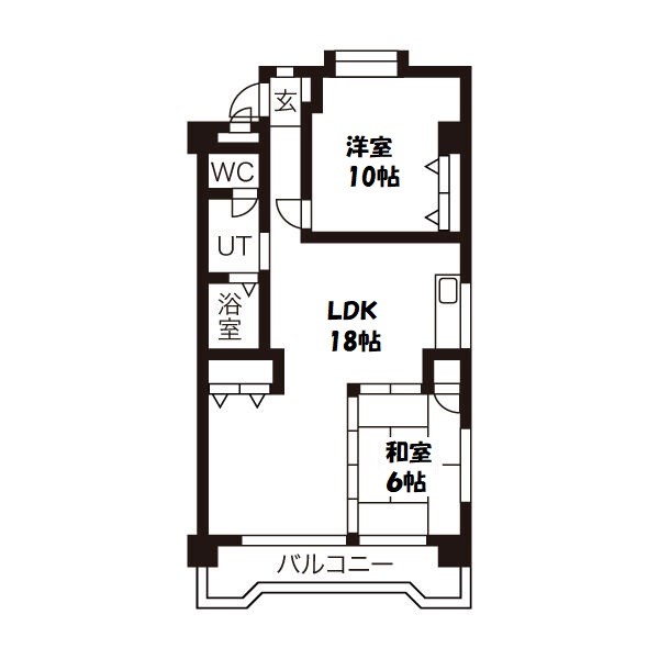
間取り(面積)

2LDK

( 68.25㎡ )

賃料(管理費等)

8.0万円

( 6000円 )

交通: 名古屋地下鉄名城線 志賀本通駅 徒歩3分

敷金/礼金: - / -

保証金/敷引/償却金: 2ヶ月 / - / 100%

所在地: 名古屋市北区若葉通

築年月: 1990年1月

ポイント

駅近物件!地下鉄志賀本通駅から徒歩3分!通勤通学に便利です♪

問い合わせ(無料)

TEL: 052-753-7581

お問い合わせ番号: 0000020592

QRコード

資料請求などはこちら

問い合わせ(無料)

TEL: 052-753-7581

お問い合わせ番号: 0000020592

セールスポイント

特徴 南面バルコニー,2F以上,角住戸,南面リビング,カード決済可(入居時費用)
設備 エレベーター,ガスコンロ設置可,バス・トイレ別,脱衣所,シャワー,洗面所独立,洗面化粧台,BS,インターホン,ガス給湯,室内洗濯機置場,クローゼット,シューズボックス,ガス(都市ガス),下水(公共下水),電気
光ファイバー エレベーター 1基
部屋外設備 バルコニー
駐車場 駐輪場:有
周辺施設 スーパー:マックスバリュ 若葉通店 211m
コンビニ:セブンイレブン 名古屋若葉通2丁目店 206m
コンビニ:ファミリーマート 志賀本通駅前店 290m
ドラッグストア:V・drug 瑠璃光店 432m
ショッピング施設:メッツ大曽根 1546m
ショッピング施設:イオンモール ナゴヤドーム前 2502m
郵便局:名古屋若葉通郵便局 283m

物件概要

 
物件名 エステート若葉
物件所在地 愛知県名古屋市北区若葉通3丁目8-2 周辺地図
交通機関 名古屋地下鉄名城線 志賀本通駅 徒歩3分
名古屋地下鉄名城線 平安通駅 徒歩4分
名古屋地下鉄名城線 大曽根駅 徒歩14分
間取り詳細 LDK(18畳) 洋室(10畳) 和室(6畳)
専有面積 68.25㎡
所在階/地上階数 4 / 7 部屋向き
建物構造 鉄筋コンクリート 築年月 1990年1月
総戸数 20
賃料 8.0万円 管理費等 6000円
保証金 2ヶ月 更新料
敷引/償却金 - / 100% 敷引・償却区分 解約時
積増し敷金 - 積増し理由
損害保険 有 
契約形態 普通借家契約 期間 契約期間:2年
現況 入居時期 即時 
備考 NAGOYA家不動産はこの物件が仲介手数料0円でご紹介可能!当店オススメ物件!是非、お問い合わせください TEL 052-753-7581

その他

取引態様 仲介元付(一般) 自社管理番号 0000020592
情報更新日 2026年5月1日 次回更新予定日 2026年5月31日
不動産会社コード 2101461 物件管理コード 1141326010200000019567
  • ※間取りの「S」はサービスルーム(納戸)です。
  • ※QRコードは(株)デンソーウェーブの登録商標です。

資料請求などはこちら

問い合わせ(無料)

TEL: 052-753-7581

お問い合わせ番号: 0000020592

お問い合わせ先:株式会社なごやか不動産 本店

所在地 : 愛知県名古屋市千種区今池1丁目1-1
TEL : 052-753-7581
免許番号 : 愛知県知事(3)第22088号
加盟団体 : 公益社団法人全日本不動産協会

この部屋を見学予約

ホームへ戻る

Copyright (C) nagoyakafudousan All rights reserved.
');